Nantucket

We transformed a high-end spec house in Nantucket into a personalized coastal haven. Our client sought a layout reconfiguration and second-floor optimization to maximize square footage. We embraced the coastal guided by a beachy, transitional palette echoing the spirit of the island. We designed a custom kitchen layout to accommodate a growing young family, as well as custom designs for the pantry, mudroom, bathrooms, and office built-ins. The result was a harmonious blend of luxury and coastal charm, showcasing thoughtful design and skilled craftsmanship.


WEST gloucester Primary

This new construction project enlisted full interior architecture services from the pre-construction phase through to move-in day. Our design approach prioritized a sleek aesthetic while incorporating warmth and connection to the natural woodsy surroundings for a contemporary and cozy family home. The final product is a welcoming residence that addresses the family’s needs without going beyond their budget.

More design updates coming soon….New basement guest suite!


Beverly cove

This full gut renovation gave new life to a charming Cape-style home located in Beverly Cove. By renovating a three season porch into a heated mudroom, we were able to reconfigure the first floor to accommodate a first floor master en suite, open concept kitchen, and still have expansive room for living and dining areas. On the second floor, with the addition of a spacious dormer, we were able to increase the capacity of the home by adding 2 bedrooms and a bath in what was an unfinished attic space. Our renovation brought renewed life to a home that just needed a little love, creativity, and hard work.


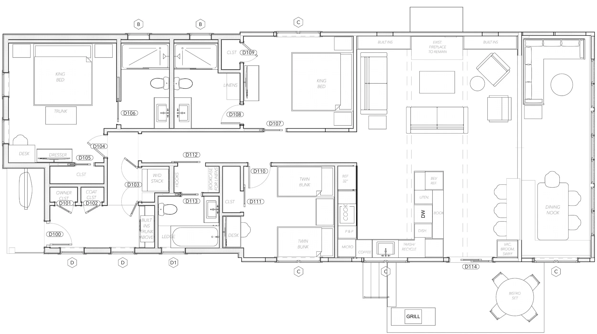
Long Lake cabin

On the Boards!! A full gut renovation of an original 1950’s lake side cabin in Maine. In an effort to make the cabin more user-friendly and accommodate a growing family , we are focusing on reconfiguring the space for ease of access, while also maximizing guest areas for children, grandchildren, and friends to gather at this heirloom family retreat. Our design integrates modern upgrades and conveniences with the classic cabin character seamlessly. We can’t wait to see the finished product of the perfect blend of nostalgia and contemporary comfort in this family cabin.

DESIGN INQUIRY